Miasto Mińsk Mazowiecki

Zdjęcia w topie

Zmiana wizualizacji

Data

Dzisiaj jest 3 marca 2021

Imieniny:

Kunegundy, Maryny, Hieronima

Menu główne

Plan zagospodarowania przestrzennego

Ewidencja zabytków

Księga gości

Wpisz się do księgi gości. Zostaw po sobie ślad.

Newsletter

Newsletter
Zapisz się do newslettera i bądź na bieżąco z wydarzeniami

Podaj poniżej adres e-mail

Reklama

  • Europa dla Obywateli
  • MSA wyposażenie

Nawigacja:

Treść strony

Warsztaty językowe Teaching English in Poland 2017

            W dniach 17-28 lipca b.r. odbywały się już po raz drugi w Szkołach Salezjańskich w Mińsku Mazowieckim warsztaty językowe prowadzone przez amerykańskich nauczycieli wolontariuszy  w ramach programu TEIP Fundacji Kościuszkowskiej. Uczestniczyło w nich 95 dzieci w wieku 7 – 14 lat.

            Uczniowie przebywali na terenie szkoły przez osiem  godzin  dziennie, ucząc się języka angielskiego, poznając kulturę amerykańską, zawiązując nowe przyjaźnie oraz zdobywając  umiejętności w dziedzinach takich, jak sztuka, technika, sport, literatura i inne. Dzieci podzielone były wiekowo na 7 grup, każda grupa miała swoich amerykańskich nauczycieli oraz polskich opiekunów – wolontariuszy. W tej roli doskonale sprawdzili się salezjańscy gimnazjaliści i licealiści, dla których była to – jak sami mówili – fantastyczna lekcja języka angielskiego. Codziennie odbywały się cztery  zajęcia z Amerykanami, potem przerwa obiadowa i odpoczynek, a po południu dwie  sesje do wyboru: sportowa i artystyczna.

            Zgodnie z tradycją warsztatów pierwszy tydzień zakończył się prezentacją kultury polskiej. Wszyscy uczestnicy mogli podziwiać przedstawienie o Mazowieckiej Pyzie, przygotowane pod kierunkiem p. Danuty Graboś i p. Edyty Kuć.  przez szkolny salezjański zespół ludowy .Dzięki rodzicom uczestników warsztatów mogliśmy skosztować tradycyjnych dań polskich. W drugim tygodniu poznawaliśmy  kulturę amerykańską, wykonując talizmany i ozdoby indiańskie, malując znaki imitujące stare malowidła naskalne, jedząc popcorn i amerykańskie kanapki z masłem orzechowym oraz walcząc w bitwie na wodę.

            Nikt nie skarżył się na nudę. Zajęcia były zróżnicowane, nauczyciele amerykańscy prowadzili lekcje na różne tematy, każdy uczestnik mógł więc znaleźć coś dla siebie. Obiady były smaczne, a po południu dzieci mogły realizować swoje pasje. Dominował język angielski, nic dziwnego więc, że po kilku dniach warsztatów widok dziecka rozmawiającego po angielsku z Amerykaninem nie był niczym wyjątkowym... Niektórzy podtrzymują przyjaźnie, pisząc z Amerykanami na facebooku czy nawet dzwoniąc do siebie przez Skype'a. I wszyscy powtarzają zgodnie: „Spotkamy się znów w przyszłym roku.”

 

Ewa Przybysz-Gardyza, koordynatorka warsztatów

Repertuar kina MUZA

muzakino.pl

Przerwa techniczna w Aquaparku

Rolkowy Mińsk Mazowiecki

Uroczyste obchody 97. Rocznicy Bitwy Warszawskiej

Mszą Świętą koncelebrowaną pod przewodnictwem księdza wikariusza Kościoła Garnizonowego kpt. Łukasza Chubacza, w Kościele Narodzenia Najświętszej Maryi Panny rozpoczęto obchody 97. Rocznicy Bitwy Warszawskiej.

W uroczystości wzięli udział m.in.: Poseł na Sejm RP Czesław Mroczek, wójt gminy Mińsk Mazowiecki Antoni Janusz Piechoski, starosta miński Antoni Jan Tarczyński, Honorowy Obywatel Miasta gen. Roman Harmoza, wiceprezes Zarządu Okręgu Związku Inwalidów Wojennych w Warszawie płk. Tadeusz Tarkowski, Prezes Światowego Związku Żołnierzy AK Obwodu „Mewa-Kamień” por. Marian Kroszczyński, Prezes Związku Inwalidów Wojennych Oddział Mińsk Mazowiecki Józef Jedynak,  radni Rady Miasta Mińsk Mazowiecki, kombatanci, przedstawiciele służb mundurowych, kapłani mińskich parafii, dyrektorzy mińskich jednostek kultury, dyrektorzy miejskich i powiatowych placówek oświatowych, przedstawiciele organizacji pozarządowych, lokalni przedsiębiorcy, mieszkańcy.

Po odegraniu hymnu Polski przez Orkiestrę Dętą Miasta Mińsk Mazowiecki pod batutą Marcina Ślązaka, przemówienie okolicznościowe wygłosił burmistrz Marcin Jakubowski.

Apel Pamięci, odczytany przez ppor. Pawła Pindera zwieńczony salwą honorową oraz pieśnią „Śpi Kolego” był kolejnym elementem uroczystości pod Pomnikiem Niepodległości. Na zakończenie złożono wiązanki kwiatów i odegrano Pieśń Reprezentacyjną Wojska Polskiego.

Konferansjerem wydarzenia był Radny Rady Miasta Mińsk Mazowiecki Kazimierz Markowski. Wartę honorową przy pomniku pełnili żołnierze z Oddziału Specjalnego Centrum Szkolenia Żandarmerii Wojskowej, który także wystawił kompanię honorową dowodzoną przez  ppor. Pawła Bartnickiego. Oprawę uroczystości zapewniły poczty sztandarowe: Miasta Mińsk Mazowiecki, Gminy Mińsk Mazowiecki, 23. BLT, Oddziału Specjalnego ŻW, Centrum Szkolenia ŻW, KPP Mińsk Mazowiecki, PSP Mińsk Mazowiecki, ZIW Oddział Mińsk Mazowiecki, Towarzystwa Pamięci 7 PUL, SP nr 2, GILO Mińsk Mazowiecki, ZSZ nr 2 im. Powstańców Warszawy, ZSA Mińsk Mazowiecki.

Obchody 78. rocznicy wybuchu II wojny światowej

Mecz Mazovia-Ożarowianka

NOWY SEZON ARTYSTYCZNY W MDK. JUŻ MOŻNA SIĘ ZAPISYWAĆ!

11 września 2017 r. rozpoczynamy nowy sezon warsztatów artystycznych MDK

Zajęcia będą prowadzone zgodnie z harmonogramem.

Pierwsze zajęcia są bezpłatne. Po nich prosimy o podjęcie decyzji odnośnie uczestnictwa i uregulowanie opłat.

Zapisanie na zajęcia odbywa się poprzez złożenie (osobiste bądź mailowe) wypełnionej karty uczestnika.

Przypominamy, że zapisanie na zajęcia jest równoznaczne z akceptacją Regulaminu. Prosimy zapoznać się z jego treścią.

Zapraszamy na bezpłatne zajęcia pokazowe, na których można będzie zobaczyć jak one wyglądają i porozmawiać z instruktorem.


Terminy zajęć pokazowych:
 

28 sierpnia 2017 r. poniedziałek

godz. 16.00 Teatr po Godzinach

godz. 17.00 balet

godz. 19.00 joga junior

godz. 20.00 joga
 

29 sierpnia 2017 r. wtorek

godz. 16.00 videoclip dance

godz. 17.00 hip-hop

godz. 17.00 Klubik szczęśliwego maluszka i Dobry Start


30 sierpnia środa

godz. 17.00 zumba kids

godz. 18.00 zumba


4 września 2017 r. poniedziałek

godz. 17.00 szachy

Służba w Wojskach Obrony Terytorialnej

W Wojskowej Komendzie Uzupełnień w Mińsku Mazowieckim otwarty jest punkt informacyjny dla kandydatów do służby w Wojskach Obrony Terytorialnej, w którym można uzyskać szczegółowe informacje na temat Terytorialnej Służby Wojskowej.

Głównym zadaniem uruchomionego punktu informacyjnego jest udzielanie wszechstronnej informacji osobom zainteresowanym powołaniem do Terytorialnej Służby Wojskowej w zakresie zasad naboru oraz jej pełnienia, można również zapoznać się z planowanymi terminami szkoleń organizowanymi przez jednostki wojskowe WOT z administrowanego terenu.

 

Wojska Obrony Terytorialnej (WOT) to piąty rodzaj Sił Zbrojnych, który stanowi uzupełnienie i jest jednocześnie komplementarną częścią potencjału obronnego Polski. Daje również możliwość rozwoju zawodowego i samorealizacji.

Informacje nt. Terytorialnej Służby Wojskowej udziela:

Wojskowa Komenda Uzupełnień w Mińsku Mazowieckim
ul. Piękna 3
tel. 261-353-062; 261 353 440
 

75. rocznica likwidacji getta w Mińsku Mazowieckim - fotoreportaż

Z jednym biletem pociągami i autobusami przewoźników kolejowych

Wspólny Bilet Samorządowy to inicjatywa Związku Samorządowych Przewoźników Kolejowych, która doskonale wpisuje się w misję powstałego w czerwcu 2016 r. podmiotu zrzeszającego 11 spółek samorządowych. Jest nią m.in. wspólne działanie na rzecz poprawy jakości pasażerskich przewozów kolejowych w obrębie województw.

Bilety są dostępne w sprzedaży od 1 sierpnia br. Osoba, która zakupi Wspólny Bilet Samorządowy, jest uprawniona do nieograniczonej liczby przejazdów pociągami uruchamianymi przez takich przewoźników, jak: Koleje Mazowieckie, Warszawska Kolej Dojazdowa, Koleje Śląskie, Koleje Małopolskie, Arriva, Koleje Wielkopolskie, Koleje Dolnośląskie i Łódzka Kolej Aglomeracyjna. Oferta obejmuje również autobusy regionalne przewoźnika Arriva.

Marszałek Województwa Mazowieckiego Adam Struzik zwraca uwagę na dobry przykład, jaki spółki samorządowe dały innym przewoźnikom.
Umiejętność zgodnej współpracy i prowadzenia otwartego dialogu to cecha niezwykle ważna i przynosząca realne korzyści – zauważa. – W samorządzie jej znaczenie jest kluczowe. Jak widać, również nasze spółki posiadły tę umiejętność, dzięki czemu udało im się wypracować wspólny bilet. Cieszę się z tego sukcesu z kilku powodów. Po pierwsze – pasażerowie zyskali wygodną i tanią ofertę, a po drugie – liczę, że to dobry początek dalszej konstruktywnej współpracy samorządowych spółek kolejowych – podkreśla.

Bilet kosztuje 38 złotych i jest ważny przez całą dobę w pociągach przewoźników samorządowych i autobusach Arriva. Obecnie można na jego podstawie podróżować na 62 liniach, obsługujących ponad 950 stacji na terenie 12 województw. Wspólny Bilet Samorządowy to pierwszy krok w stronę zacieśnienia współpracy między przewoźnikami, ale też stworzenia wygodnej i atrakcyjnej cenowo oferty dla pasażerów.

- Wspólny Bilet Samorządowy to pierwsze wspólne przedsięwzięcie Związku Samorządowych Przewoźników Kolejowych. Projektowi temu przyświeca idea integracji przewoźników świadczących usługi w różnych regionach naszego kraju. To także krok w kierunku pasażerów wyjeżdżających poza granice regionów. Potrzeba podróży z jednym biletem nie jest jednak niczym nowym. Już od pewnego czasu jest ona sygnalizowana przez media, ale przede wszystkim przez najważniejszych odbiorców, czyli podróżnych. I my, w ramach Związku, postanowiliśmy dać podróżnym taką ofertę - mówi Dariusz Grajda, prezes Związku Samorządowych Przewoźników Kolejowych.

Koleje samorządowe to niekwestionowany lider wśród przewoźników kolejowych. W ubiegłym roku przewiozły ponad 133 miliony pasażerów, co stanowiło 46 proc. liczby wszystkich podróżujących pociągami w Polsce. Na drugim miejscu znalazły się Przewozy Regionalne (obecnie Polregio) z wynikiem 27 proc., a na trzecim PKP Intercity – 13 proc.

- Koleje Mazowieckie to przewoźnik, który od lat realizuje pionierskie projekty. Tym razem włączyły się we wspólny projekt wielu spółek zrzeszonych w jeden podmiot działający dla dobra pasażerów w całym kraju. Świadczymy usługi przewozowe w samym centrum kraju, na styku sześciu województw. Linie kolejowe obsługiwane przez Koleje Mazowieckie w wielu punktach stykają się z liniami, po których poruszają się pociągi innych przewoźników regionalnych, np. Łódzkiej Kolei Aglomeracyjnej, Kolei Wielkopolskich czy Arrivy. Za 38 złotych możemy pojechać np. do Łodzi, z przesiadką w Skierniewicach do pociągu Łódzkiej Kolei Aglomeracyjnej, a następnie wrócić do Warszawy. To bardzo atrakcyjna oferta  - mówi Robert Stępień, prezes zarządu Kolei Mazowieckich.

Wspólny Bilet Samorządowy to pierwszy krok w stronę zacieśnienia współpracy między przewoźnikami, ale też stworzenia wygodnej i atrakcyjnej cenowo oferty dla pasażerów.

- Wspólny Bilet Samorządowy to pierwsza ryczałtowa oferta przewoźników regionalnych obowiązująca nie tylko w weekendy, ale też w tygodniu. Biletu na zasadzie „płacę określoną kwotę i jeżdżę, ile chcę” w dni tygodnia jeszcze nie było. Póki co oferta ta, z uwagi na małą liczbę punktów styku, jest dość ograniczona terytorialnie, ale pozwala np. przejechać z Siedlec do skansenu w Wolsztynie za 38 zł, co jest ceną bardzo atrakcyjną. Oferta nie jest przeznaczona dla każdego – naszym celem jest klient, który chce tanio zwiedzić i poznać nasz kraj, zbytnio mu się nie spieszy, nie obawia się przesiadek. Popularność tego biletu będzie rosła wraz z rozwojem sieci połączeń kolei samorządowych, jednakże naszym celem nie jest konkurowanie z Intercity w przewozach dalekobieżnych – mówi Piotr Rachwalski, prezes zarządu Kolei Dolnośląskich.

- Współpraca i łączenie potencjału wielu przewoźników to możliwość coraz lepszej odpowiedzi na potrzeby i oczekiwania pasażerów – Wspólny Bilet to właśnie pierwsza taka inicjatywa Związku. Już teraz, kupując ten bilet, można podróżować wszystkimi regionalnymi pociągami i autobusami Arrivy oraz korzystać z oferty innych przewoźników samorządowych aż przez 24 godziny. Konkurencyjna cena, mobilne kanały sprzedaży, możliwość podróży koleją i autobusami na jednym bilecie - to wszystko ma ułatwić i zachęcić do korzystania ze wspólnej komunikacji. Ta oferta to początek drogi i wspólnej pracy, która ma na celu przede wszystkim oferowanie pasażerom coraz lepszych, bardziej kompleksowych i nowoczesnych rozwiązań oraz promocję transportu publicznego – podkreśla Piotr Halupczok, prezes zarządu Arrivy.

- Zdecydowaliśmy się wprowadzić w nasze oferty to, co do tej pory udało się wspólnie wypracować. Mogliśmy jeszcze długo debatować i odwlekać wprowadzenie biletu, ale nie chcieliśmy. Teraz będziemy czytać komentarze w Internecie, wsłuchiwać się w głosy naszych pasażerów, analizować wszystkie informacje, które do nas będą docierać. Jest to dopiero pierwsza wersja naszego biletu, będziemy starać się ją rozbudowywać – mówi Wojciech Dinges, prezes zarządu Kolei Śląskich

Jedenaście kolejowych spółek samorządowych – przewoźników pasażerskich: Koleje Mazowieckie, Koleje Dolnośląskie, Koleje Śląskie, Koleje Wielkopolskie, Łódzka Kolej Aglomeracyjna, SKPL Cargo, ARRIVA Polska, ARRIVA RP, Koleje Małopolskie, Warszawska Kolej Dojazdowa oraz Szybka Kolej Miejska - zrzeszonych w ZSPK obsługuje dziś ponad 4800 kilometrów linii kolejowych, zatrudniając 6265 pracowników. Liczba wykorzystywanego taboru, wliczając człony elektrycznych zespołów trakcyjnych, wynosi dziś 1473 wagony oraz 43 lokomotywy i stanowi bardzo poważny i stale rosnący udział na polskim rynku kolejowym.
Celem statutowym ZSPK jest m.in. skuteczne i solidarne działanie na rzecz rozwoju transportu kolejowego, kształtowanie dobrych praktyk związanych z zatrudnieniem w branży kolejowej, działanie na rzecz poprawy oferty dla pasażerów, reprezentowanie i popieranie działań na rzecz członków i reprezentowanie ich interesów, podejmowanie działań zmierzających do podnoszenia poziomu wykształcenia, kwalifikacji i wiedzy o kolejach.

 

mat. Kolei Mzowieckich

Party nie na żarty, czyli 4 urodziny mińskiej rodziny - 3.09.2017

W tym roku zgodnie z tradycją Miejski Ośrodek Sportu i Rekreacji zaprasza na Stadion Miejski przy ul. Sportowej 1 w Mińsku Mazowieckim. Mamy nadzieję, że odpowiecie na nasze wezwanie i tłumnie odwiedzicie nas w pierwszą niedzielę września, tj. 3.09.2017. Będziemy wspólnie świętować Miński Dzień Rodziny z iście amerykańskimi akcentami. Chcesz wiedzieć więcej? Odwiedzaj nasz profil fb www.facebook.com/MOSiRMM/ i stronę internetową www.mosir.org.pl ! Do zobaczenia! 

Letnie obozy Akademii Sztuk Walki

W lipcu odbył się już XVII obóz Taekwon-do z Akademią Sztuk Walki. Tym razem akademicy wyjechali do ośrodka kolonijnego „Jędrek” w Augustowie. Podczas trwania obozu czekały na nas świetne atrakcje: nauka jazdy na nartach wodnych, bez ograniczeń nauka i doskonalenie pływania kajakiem, zakończone spływem kajakowym. Wspaniale udała się wycieczka po Suwalszczyźnie. Zwiedzaliśmy Pokamedulski Klasztor  w Wigrach, Smolniki „U Pana Tadeusza”, przepiękne mosty w Stańczykach, a także „Trójstyk granic”. Na Litwie oglądaliśmy zamek w Trokach i piękne miasto Wilno. Dzieci i młodzież wybrała się również na rejs statkiem „Jadźwiedź” po Dolinie Rospudy. Codzienne konkursy i gry zespołowe, dyskoteki, chrzest kolonijny, śpiewy przy gitarze szybko zintegrowały grupę, aż żal było wracać do domu.

Kolejny obóz już XVIII na przełomie lipca i sierpnia odbył się na Słowacji wysoko w górach w pensjonacie „Paradise” w cudownej uzdrowiskowej miejscowości Kunerad. Tu spędzaliśmy czas bardzo intensywnie: wspaniałe spacery po górach do pobliskich zamków, odpoczynek na basenach w Rajeckich Teplicach przy 36 stopniach ciepła był bardzo przyjemny. Rewelacyjnie bawiliśmy się na spływie tratwami po najważniejszej słowackiej rzece, gdzie był rwący nurt i piękne krajobrazy. Odbyła się także wycieczka do Słowackiego Betlejem, gdzie byliśmy również na Mszy Świętej. Podziwialiśmy także Janosikowe Góry - coś co trudno opisać, trzeba przejść i zobaczyć. Byliśmy jeszcze w Żylinie na rynku przy fontannach i na lodach. Program obozu był bardzo napięty, odbyły się chrzty i śluby obozowe, dyskoteki, wieczorami graliśmy w piłkę, podczas pogodnych wieczorów śpiewaliśmy przy gitarach i przedstawialiśmy różnego rodzaju wesołe skecze. Ostatniego wieczoru zwyczajem w Akademii Sztuk Walki jest Sayonara -  uroczyste ognisko pożegnalne z kiełbaskami, rozdanie nagród, medali i dyplomów, ostatnia iskierka na apelu i na żądanie pompeczki – to był dobry czas.

W obozach wakacyjnych organizowanych przez Akademię Sztuk Walki wzięło udział 143 osoby.

Dziękujemy za pomoc Panu Wójtowi Gminy Krzysztofowi Kalinowskiemu i Radzie Gminy, a także wszystkim osobom zaangażowanym w organizację obozu: Monice Matwiej, Rafałowi Wtulich, Mateuszowi Laskusowi, Małgorzacie Matwiej, Mateuszowi Gajewskiemu, Barbarze Majewskiej, Sebastianowi Walasowi, Damianowi Walasowi i wspaniałej pani ratownik medycznej – Ewie Sobieraj oraz kierownikowi zamieszania Dawidowi Matwiejowi.

Jeśli i Ty chcesz rozpocząć przygodę z Taekwon-do ITF, Karate czy Kickboxingiem, uczyć się i trenować przepiękne sztuki walki, przyjdź na treningi do Akademii Sztuk Walki.

Zapisy i więcej info na: www.asw-tkd.pl i pod nr tel. 507-145-636.
Śledź także nasz profil na Facebook’u: Akademia Sztuk Walki.

Taekwon!!!

Zarząd ASW

Mecz Mazovia-Mławianka

Narodowe Czytanie

2 września, podczas kolejnej edycji Narodowego Czytania, zaprosimy Państwa do wysłuchania fragmentów dramatu Stanisława Wyspiańskiego "Wesele". Z tej okazji, przygotowaliśmy dla naszych czytelników  spotkanie z odtwórczynią roli Racheli w filmie Andrzeja Wajdy "Wesele" - Mają Komorowską. Zapraszamy!

 

Repertuar kina MUZA

www.muzakino.pl

MOPS informuje

MIEJSKI OŚRODEK POMOCY SPOŁECZNEJ W MIŃSKU MAZOWIECKIM

informuje:

  • w związku z nowym okresem świadczeniowym wnioski w formie papierowej o przyznanie świadczeń rodzinnych, w tym świadczenia 500+, świadczenia  wychowawczego oraz świadczenia  z  funduszu  alimentacyjnego  w dniach 30 sierpnia 2017 r. oraz 31 sierpnia 2017 r. będą przyjmowane do godziny 19.00 !!!
  • od dnia  1  września  2017 r. wszelkie wypłaty gotówkowe będą się odbywały w Punkcie Kasowym Banku Spółdzielczego przy ul. Tuwima 2  w  Mińsku Mazowieckim.

Rzecznik Prasowy MOPS

Letni Festiwal Orkiestr Dętych za nami

Już po raz 9., tradycyjnie w ostatnią niedzielę wakacji, na dziedzińcu Pałacu Dernałowiczów odbył się Letni Festiwal Orkiestr Dętych. Cztery orkiestry, przeszło 200 wykonawców, występy mażoretek, werblistek i prezentacja zespołu tanecznego. Wybrzmiały przeboje muzyki popularnej, jazzowej, filmowej i klasycznej a licznie zgromadzona publiczność mogła podziwiać barwność i różnorodność strojów a także wysoki kunszt artystyczny każdego z zespołów. 

W tym roku w naszym mieście zaprezentowały się Radomska Młodzieżowa Orkiestra Dęta „Grandioso” z kapelmistrzem Dariuszem Krajewskim, Orkiestra Dęta OSP Lubartów pod batutą Andrzeja Zaręby, Radzymińska Orkiestra Dęta z kapelmistrzem Zbigniewem Kusiem oraz Orkiestra Dęta Miasta Mińsk Mazowiecki z kapelmistrzem Marcinem Ślązakiem, który jest także dyrektorem artystycznym Letniego Festiwalu Orkiestr Dętych. Muzycy jak co roku przemaszerowali ulicami naszego miasta - ulicami Topolową, Chełmońskiego, Tuwima, Piłsudskiego i Bulwarną.

Publiczność pomiędzy koncertami poszczególnych orkiestr mogła podziwiać występy mażoretek oraz werblistek orkiestry „Grandioso” z Radomia, a także zespołu tanecznego orkiestry OSP z Lubartowa. Festiwal zakończyło wspólne wykonanie trzech utworów. Był słynny przebój „Je t'aime... moi non plus” Serge'a Gainsbourga w wersji instrumentalnej oraz „Samba Brazil”, które bardzo spodobały się publiczności. Wykonano również, jak zawsze na koniec we wszystkich edycjach festiwalu, marsz „Szlakiem Brdy”. Połączonymi orkiestrami dyrygował Marcin Ślązak. Imprezę, jak co roku poprowadził znany z radia i telewizji Pan Andrzej Krusiewicz.

Organizatorem festiwalu było Mińskie Towarzystwo Muzyczne we współpracy z Miejskim Domem Kultury, ze środków budżetu miasta Mińsk Mazowiecki oraz Powiatu Mińskiego.

 

Międzykulturowe Lato z EBU

Jak co roku, tak i tym razem, Fundacja EBU nie zawiodła naszych młodych mieszkańców. Wszyscy uczestnicy tegorocznych międzykulturowych półkolonii na pewno przygotowują się do roku szkolnego, mając jeszcze w pamięci błogie wspomnienia z zajęć z zagranicznymi wolontariuszami EBU. Było to grono kreatywnych i energicznych młodych ludzi, którzy przylecieli do nas z różnych krajów, między innymi z Portugalii, Rumunii, Finlandii czy Włoch. Jednak nie zawsze tak było. Międzykulturowe Lato jest cyklicznym wydarzeniem organizowanym przez Fundację EBU od 2006 roku, mającym miejsce w różnych placówkach naszego miasta. Przez pierwsze cztery lata w projekt angażowali się jedynie nasi przyjaciele z USA. Natomiast od 2009 roku gościmy wolontariuszy z najróżniejszych zakątków świata. Energia wydarzenia jest jednak niezmienna, cały czas naładowana pozytywnymi emocjami.

W lipcu tego roku odbyły się cztery turnusy wesołych i niepowtarzalnych półkolonii międzykulturowych dla dzieci, które odbyły się w gościnnych murach Zespołu Szkół Miejskich nr 2 przy ul. Siennickiej. Fundacja EBU przygotowała również warsztaty bardziej dostosowane do nastoletniego temperamentu, które jak co roku miały miejsce w Gimnazjum Miejskim im. Jana Pawła II, gdzie przez dwa tygodnie mińscy gimnazjaliści mogli kreatywnie spędzić czas. Wszystkie zajęcia poprowadził roześmiany zespół 18 wolontariuszy zagranicznych oraz 30 lokalnych wolontariuszy polskich. W zajęciach w obu grupach wiekowych łącznie wzięło udział 357 uczestników w wieku od 5 do 15 lat.

Turnus pierwszy Międzykulturowego Lata 2017 wystartował razem z początkiem wakacji, oferując moc wrażeń. Uczestnicy półkolonii mogli przekonać się, że magia kryje się w przedmiotach codziennego użytku, a czarować może nie tylko czarodziej albo wróżka, ale każdy z nas swoją osobowością. Drugi tydzień również był bogaty w wydarzenia nie z tej ziemi, jako że tematem przewodnim był kosmos. Zamysłem każdych półkolonii jest stworzenie nazw grup związanych z motywem, który króluje przez kolejne pięć dni. Dzięki temu uczestnicy drugiego turnusu mogli osłuchać się z takimi nazwiskami jak Tierieszkowa, która była pierwszą kobietą w kosmosie czy Hermaszewski, który jako pierwszy i dotychczas jedyny Polak odbył lot w kosmos.  Jednym z bardzo ważnych celów Międzykulturowego Lata jest pobudzenie dziecięcej kreatywności i zachęcanie do niestandardowych rozwiązań. Miało to swoje zastosowanie w tworzeniu języka astronomicznego oraz układu słonecznego z dostępnych materiałów, a rezultaty były zaskakujące. Kontynuację takich działań można było znaleźć podczas trzeciego tygodnia, który upłynął uczestnikom pod znakiem natury. EBU stawia nie tylko na współpracę z drugim człowiekiem, ale też z przyrodą, dlatego w trakcie zajęć dzieci mogły tchnąć drugie życie w stare przedmioty, a słowo recykling było kluczowe. Jeżeli ktoś wytrwał całe trzy tygodnie, to zwieńczeniem tegorocznej przygody z letnimi półkoloniami Fundacji był turnus czwarty, podczas którego kraje wolontariuszy EBU dzieci poznawały między innymi przy pomocy słuchu, węchu czy wzroku. Młodzi odkrywcy mogli przekonać się jak zmieniają się nasze zdolności poznawcze w zależności od tego, który ze zmysłów jest wykluczony.

Wszystkie zajęcia Międzykulturowego Lata przeplatane były dużą dawką wiedzy na temat środowisk, w których żyją wolontariusze. Uczestnicy półkolonii uzyskali informacje dotyczące Asterixa i Obelixa od Francuzek, tworzyli swoje własne marakesy z Portugalczykami oraz mogli zatańczyć „sevillanę” z Hiszpanką, a to i tak tylko ułamek z tego, co działo się w Zespole Szkół Miejskich nr 2 przy ul. Siennickiej tego lata. Wakacje dobiegły końca i Międzykulturowe Lato 2017 również, ale Fundacja EBU nie znika ze sceny na długo. Już niebawem powróci do nas z wieczorami międzykulturowymi dla dorosłych i z całą masą innych inicjatyw dla młodzieży, o których pojawią się informacje już wkrótce.

Kinga Bartnicka

Fundacja EBU

www.facebook.com/festiwalhimilsbacha

https://www.facebook.com/festiwalhimilsbacha/

7. Miński Zlot Pojazdów Zabytkowych "WARKOT"

  • Czasowe zamkniecie ruchu w dniu 10 września w godz. 8.30 -...
    Czasowe zamkniecie ruchu w dniu 10 września w godz. 8.30 - 13.30

We wrześniu zmiana rozkładu jazdy pociągów

Rozkład jazdy w zmienionym kształcie będzie obowiązywać od 3 września do 14 października 2017 r. Najpoważniejsze zmiany czekają podróżnych korzystającychz przejazdów na trasie Warszawa - Grodzisk Mazowiecki - na tej trasie zmiany będą obowiązywać jeszcze przez około rok.

Informacja Powiatowego Lekarza Weterynarii

 

 

Wernisaż wystawy „Święci Pańscy”

8 sierpnia br. o godz. 18.00 w Muzeum Ziemi Mińskiej  przy ul. Okrzei 16 odbył się wernisaż wystawy „Święci Pańscy”, która prezentuje rzeźby i płaskorzeźby, oleodruki oraz tkaniny dwuosnowowe ze zbiorów Muzeum Regionalnego w Łukowie. Trzon kolekcji stanowią rzeźby ludowe wykonane w latach 1974 – 2013 przez czołowych twórców ludowych z Łukowa i okolic.

Artyści są przedstawicielami Łukowskiego Ośrodka Rzeźby Ludowej, który działa od 1965 roku i jest jednym z głównych ośrodków rzeźbiarskich w kraju.  Prezentowane tkaniny dwuosnowowe są autorstwa jednej z czołowych tkaczek polskich – Dominiki Bujanowskiej.

Otwarciu wystawy towarzyszył koncert na flecie w wykonaniu Pani Joanny Tic-Ramos. Wystawę można zwiedzać do 1 października br. w godzinach pracy Muzeum.

MZM

ZAPRASZAMY NA FESTIWAL HIMILSBACHA - promo video

9. Festiwal Himilsbacha POP/KULTurraa!

PROGRAM Festiwalu:
5/09 Urraa! / 9. Festiwal Himilsbacha
START godz. 20:00
→ koncert Drugs & Drive i PRZYJACIELE / promocja wydawnictwa
→ Julia Pietrucha / koncert
→ wręczenie nagrody MONIDŁO

6/09 PopArt / 9. Festiwal Himilsbacha
→ 10:00 warsztaty komiksu
→ 19:00 Andy Warhol / wernisaż

7/09 KULTowy TEATR / 9. Festiwal Himilsbacha
→ 10:00 warsztaty sitodruku
→ 19:00 Audiobook "Dwa spektakle” - promocja wydawnictwa / Goście: Anna Gornostaj i Witold Dębicki, emisja spektaklu "Kłopoty to moja specjalność"

8/09 POPularny i KULTowy Bohater / 9. Festiwal Himilsbacha
→ 10:00 warsztaty dubbingu
→ 20:00 Niemy Movie / Młody Sherlock Holmes

9/09 FINAŁ na Urraa! / 9. Festiwal Himilsbacha
→ 19:00 projekcja filmu "Smażalnia Story”
Start godz. 20:00
→ Jazzombie
→ Krzysztof Zalewski & Natalia Przybysz
→ Festiwalowy after z Soul Service

10/09 KULTowy Bohater kino dla najmłodszych / 9. Festiwal Himilsbacha
→ 12:00 "Pan Kleks w kosmosie"

Wystawy plenerowe, greenbox i dużo więcej!

 

Bezpłatne seminarium szkoleniowe dot. azbestu

WKU zaprasza do Wojsk Obrony Terytorialnej

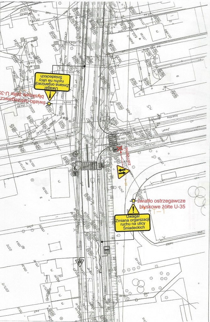
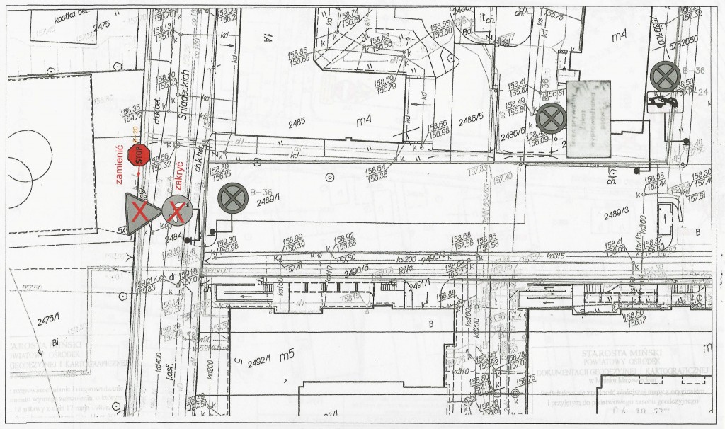
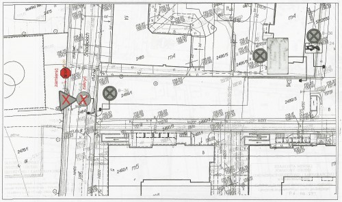
Zmiana organizacji ruchu na ul. Śniadeckich

Wyprawka szkolna 2017

Dofinansowanie zakupu podręczników dla uczniów ze specjalnymi potrzebami edukacyjnymi to główny cel rządowego programu „Wyprawka szkolna” przyjętego przez Radę Ministrów.

Wsparcie dotyczy zakupu podręczników do kształcenia ogólnego, w tym podręczników do kształcenia specjalnego lub podręczników do kształcenia w zawodach, dopuszczonych do użytku szkolnego przez Ministra Edukacji Narodowej.

Program „Wyprawka szkolna” skierowany jest do uczniów:

  1. słabowidzących,
  2. niesłyszących,
  3. słabosłyszących,
  4. z niepełnosprawnością intelektualną w stopniu lekkim,
  5. z niepełnoprawnością intelektualną w stopniu umiarkowanym lub znacznym,
  6. z niepełnosprawnością ruchową, w tym z afazją,
  7. z autyzmem, w tym z zespołem Aspergera,
  8. z niepełnosprawnościami sprzężonymi, w przypadku, gdy jedną z niepełnosprawności jest niepełnosprawność wymieniona w pkt 1–7

–  posiadających orzeczenie o potrzebie kształcenia specjalnego albo orzeczenie o potrzebie kształcenia specjalnego, uczęszczających w roku szkolnym 2017/2018 do szkół dla dzieci i młodzieży do:

  1. klasy II i III dotychczasowej zasadniczej szkoły zawodowej prowadzonych w branżowych szkołach I stopnia,
  2. klasy I branżowej szkoły I stopnia,
  3. liceum ogólnokształcącego, technikum lub szkoły specjalnej przysposabiającej do pracy lub do

W przypadku uczniów z niepełnosprawnością intelektualną w stopniu umiarkowanym lub znacznym oraz uczniów z niepełnosprawnościami sprzężonymi (w przypadku gdy jedną z niepełnosprawności jest niepełnosprawność intelektualna w stopniu umiarkowanym lub znacznym), uczęszczających w roku szkolnym 2017/2018 do szkół dla dzieci i młodzieży do: – klasy II i III szkoły podstawowej,

– klasy II i III dotychczasowej zasadniczej szkoły zawodowej prowadzonych w branżowych szkołach I stopnia,

– klasy I branżowej szkoły I stopnia,

– liceum ogólnokształcącego, technikum lub szkoły specjalnej przysposabiającej do pracy dofinansowanie obejmuje również zakup materiałów edukacyjnych.

Wysokość pomocy

Dofinansowanie zakupu podręczników, a w przypadku uczniów z niepełnosprawnością intelektualną w stopniu umiarkowanym lub znacznym oraz uczniów
z niepełnosprawnościami sprzężonymi, w przypadku gdy jedną z niepełnosprawności jest niepełnosprawność intelektualna w stopniu umiarkowanym lub znacznym – także zakupu materiałów edukacyjnych, będzie wynosić:

dla uczniów z niepełnosprawnością intelektualną w stopniu umiarkowanym lub znacznym oraz uczniów z niepełnosprawnościami sprzężonymi, w przypadku gdy jedną z niepełnosprawności jest niepełnosprawność intelektualna w stopniu umiarkowanym lub znacznym, uczęszczających do klasy II i III szkoły podstawowej, którzy nie korzystają z podręcznika do zajęć z zakresu edukacji: polonistycznej, matematycznej, przyrodniczej i społecznej, zapewnionego przez ministra właściwego do spraw oświaty i wychowania

do kwoty 175 zł

dla uczniów z niepełnosprawnością intelektualną w stopniu umiarkowanym lub znacznym oraz uczniów z niepełnosprawnościami sprzężonymi, w przypadku gdy jedną z niepełnosprawności jest niepełnosprawność intelektualna w stopniu umiarkowanym lub znacznym, uczęszczających do klasy II i III dotychczasowej zasadniczej szkoły zawodowej prowadzonych w branżowych szkołach I stopnia, klasy I branżowej szkoły I stopnia, liceum ogólnokształcącego, technikum lub szkoły specjalnej przysposabiającej do pracy

do kwoty 225 zł

dla uczniów słabowidzących, niesłyszących, słabosłyszących, z niepełnosprawnością intelektualną w stopniu lekkim, z niepełnosprawnością ruchową, w tym z afazją, z autyzmem, w tym z zespołem Aspergera, oraz uczniów z niepełnosprawnościami sprzężonymi, w przypadku gdy jedną z niepełnosprawności jest niepełnosprawność wymieniona wyżej, uczęszczających do klasy II i III dotychczasowej zasadniczej szkoły zawodowej prowadzonych w branżowych szkołach I stopnia lub klasy I branżowej szkoły I stopnia

do kwoty 390 zł

dla uczniów słabowidzących, niesłyszących, słabosłyszących, z niepełnosprawnością intelektualną w stopniu lekkim, z niepełnosprawnością ruchową, w tym z afazją, z autyzmem, w tym z zespołem Aspergera, oraz uczniów z niepełnosprawnościami sprzężonymi, w przypadku gdy jedną z niepełnosprawności jest niepełnosprawność wymieniona wyżej, uczęszczających do liceum ogólnokształcącego, technikum

do kwoty 445 zł

Gdzie i kiedy należy złożyć wniosek

Przyznanie pomocy następuje na wniosek rodziców ucznia (prawnych opiekunów, rodziców zastępczych, osób prowadzących rodzinny dom dziecka), pełnoletniego ucznia, a także nauczyciela, pracownika socjalnego lub innej osoby – za zgodą rodziców ucznia (prawnych opiekunów, rodziców zastępczych, osób prowadzących rodzinny dom dziecka) albo pełnoletniego ucznia.

Wniosek składa się do dyrektora szkoły, do której uczeń będzie uczęszczał w roku szkolnym 2017/2018.

Do wniosku należy dołączyć kopię orzeczenia o potrzebie kształcenia specjalnego.

Termin składania wniosków o przyznanie pomocy Burmistrz Miasta Mińsk Mazowiecki ustalił do 12 września 2017 r

Jakimi dokumentami rozlicza się zakupy

W przypadku zakupów indywidualnych dowodem zakupu jest faktura VAT wystawiona imiennie na ucznia, rodzica (prawnego opiekuna, rodzica zastępczego, osobę prowadzącą rodzinny dom dziecka), rachunek, paragon lub oświadczenie o zakupie odpowiednio podręczników lub materiałów edukacyjnych. W przypadku złożenia oświadczenia należy do niego dołączyć informację o rozliczeniu wydatków odpowiednio na zakup podręczników lub materiałów edukacyjnych tylko w ramach rządowego programu pomocy uczniom w 2017 r. – „Wyprawka szkolna”.

W przypadku zakupów dla grupy uczniów koszt zakupu podręczników lub materiałów edukacyjnych jest zwracany rodzicom uczniów (prawnym opiekunom, rodzicom zastępczym, osobom prowadzącym rodzinny dom dziecka) albo pełnoletnim uczniom do wysokości wartości pomocy. Następuje to po przedłożeniu potwierdzenia zakupu. Wystawia je podmiot, który dokonał zakupu, na podstawie faktury VAT i listy uczniów, dla których przygotowano podręczniki lub materiały edukacyjne.

Potwierdzenie zakupu musi zawierać następujące dane:

  • imię i nazwisko ucznia,
  • nazwę i adres szkoły,
  • klasę, do której uczeń będzie uczęszczał,
  • wykaz zakupionych podręczników lub materiałów edukacyjnych,
  • kwotę i datę zakupu,
  • czytelny podpis osoby, która dokonała zakupu.

Ocena jakości wody

Działając zgodnie z art. 12 ust. 5 ustawy z dnia 7 czerwca 2001 r. o zbiorowym zaopatrzeniu w wodę i zbiorowym odprowadzaniu ścieków (Dz. U. 2017 r. poz. 328) podaję do publicznej wiadomości ocenę jakości wody przeznaczonej do spożycia przez ludzi z dnia 31 sierpnia 2017 r. sporządzoną przez Państwowego Powiatowego Inspektora Sanitarnego w Mińsku Mazowieckim.

Spotkanie w bibliotece z Andrzejem Mellerem

Wakacje, wakacje i...po wakacjach! Możesz jednak nieco je przedłużyć odwiedzając niektóre zakątki świata z naszymi autorami. Jesienne spotkania z cyklu Biblioteka Podróży rozpoczyna Andrzej Meller i jego Wietnam, jakiego nie znamy!

Środa, 20 września, godz. 18.30.

Jak dziś wygląda kraj, który był areną jednej z najgłośniejszych wojen drugiej połowy XX wieku?
O Wietnamie jakiego nie znamy opowie nam podczas najbliższego spotkania z Biblioteką Podróży - Andrzej Meller, autor książki "Czołem, nie ma hien. Wietnam jakiego nie znacie".
Polski dziennikarz, pracujący głównie jako reportażysta i korespondent wojenny, współpracownik Tygodnika Powszechnego, Nationla Gepgrphic i Kontynentów. Mieszkał przez 3 lata w Wietnamie zanim postanowił przybliżyć nam ten liczący ponad 90 mln mieszkańców, spokojny kraj, który Europejczyków czy Amerykanów przyciąga tropikalnym klimatem i niskimi kosztami życia. Chociaż ślady walk z Amerykanami, a wcześniej z Francuzami są w Wietnamie wciąż obecne.

Jak podróżować, co jeść, co koniecznie zobaczyć i skąd się wziął dziwny tytuł jego książki - tego możemy dowiedzieć się podczas spotkania z Andrzejem Mellerem!

Repertuar Kina MUZA

#BeInclusive EU Sport Awards

Komisja Europejska ogłosiła nową inicjatywę – konkurs  #BeInclusive EU Sport Awards.

Jego zadaniem jest walka z wykluczeniem społecznym na różnych polach – od dyskryminacji mniejszości etnicznych po trudną młodzież.

Do kogo adresowane jest #BeInclusive EU Sport Awards?

Do akcji może dołączyć każda instytucja – publiczna, prywatna czy też pozarządowa, która swoimi działaniami poprzez sport przyczyniła się do integracji społecznej różnego rodzaju mniejszości.

Zgłoszone projekty będą ocenianie pod kątem powtarzalności, innowacyjności oraz efektywności.

Przedstawiciele trzech zwycięskich instytucji zostaną zaproszeni do Brukseli na ceremonię, podczas której otrzymają nagrodę 10 000 euro oraz będą mieli szansę zaprezentowania swoich projektów szerszej publiczności.

KE zachęca wszystkich do dołączenia do konkursu i inspirowania innych do tego, jak integrować społeczności zróżnicowane pod względem zdrowotnym,  etnicznym, rasowym czy też zamożności.

 

Aby wziąć udział w konkursie:

1. Wypełnij ankietę https://ec.europa.eu/eusurvey/runner/beinclusive-submission-form.

2. Opisz w niej to, jak zwalczasz wykluczenie społeczne w swoim środowisku poprzez sport.

3. Dołącz opis swojego projektu (maksymalnie 3 strony), uwzględniając misję #BeInclusive EU Sport Awards – powtarzalność, innowacyjność, efektywność. Dołącz zdjęcia bądź krótkie filmiki.

4. Ankieta oraz opis powinny być sporządzone w języku angielskim.

5. Zgłoszenia można przesyłać od 15 czerwca do 15 września.

 

Jury będzie oceniało to, jak wykorzystanie sportu w projektach wpłynęło na integrację lokalnej społeczności oraz na jej otwartość na innych.

 

Więcej informacji na stronie: https://ec.europa.eu/sport/be-inclusive_en

 

 

Kalendarium

«marzec 2021»
PnWtŚrCzwPtSobNd
1234567
891011121314
15161718192021
22232425262728
293031

Najbliższe wydarzenia:

Brak wydarzeń w wybranym okresie

Reklama

  • Dyżury aptek
  • Wirtualny spacer
  • INWESTYCJE
  • baner reklamowy
  • MIM
  • FUNDUSZE ZEWNĘTRZNE
  • MIASTA PARTNERSKIE
  • OFERTY PRACY
  • GALERIA
  • CERTYFIKATY
  • ANKIETY
  • PLAN MIASTA
  • Punkty teleadresowe
  • E_PUŁAP
  • Karta Dużej Rodziny
  • Rodzinny Mińsk
  • Żołnierze Wyklęci

Rotator zdjęć

  • MKS MAZOVIA
    MKS MAZOVIA
  • Gmina Mińsk Mazowiecki

Dane teleadresowe

Urząd Miasta Mińsk Mazowiecki
ul. Konstytucji 3 Maja 1
05-300 Mińsk Mazowiecki
tel. +48 25 759 53 00, 759 53 11
fax +48 25 758 40 25
e-mail: boi@umminskmaz.pl

Licznik

Licznik odwiedzin 24556